06142 / 723 36
immobilien@windorf.de
Biebesheim am Rhein liegt im Hessischen Ried, ca. 15 Kilometer südwestlich von Darmstadt, ca. 20 Kilometer nördlich von Worms und ca. 15 Kilometer südöstlich von Bensheim. Mannheim und Frankfurt am Main sind jeweils ca. 35 Kilometer entfernt.
Anbindung über das ÖPNV Bahnhof in Biebesheim Riedbahn, die Autobahnanschlüsse A67 Pfungstadt oder Gernsheim.
– Neubau auf Erbbaugrundstück, Erbpacht noch 96 Jahre, anteiliger Erbbauzins ca. 136 € mtl., bis 2026 nur die Hälfte
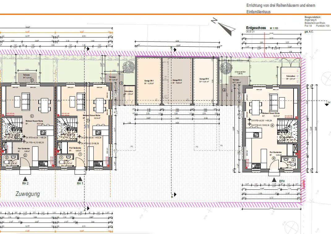
– Reihenendhaus Nummer 3
– in einer 4er Konstellation bestehend aus einem freistehenden Haus und 3 Reihenhäusern Nahe der Ortsmitte von Biebesheim
– 2 Tageslichtbäder
– Garten Westausrichtung
– Massivbauweise
– Garage
– Stellplatz
– Nicht unterkellert
– Schlüsselfertig ohne Bodenbeläge und Tapezierarbeiten
Fordern Sie die detaillierten Erbbaurechtsvertrag, Grundrisse, Baubeschreibung, Teilungserklärung, Energiebedarfsberechnung an.
Reihenendhaus Nummer 1 ist bereits verkauft!
Reihenmittelhaus Nummer 2 (6042) auf ca. 100 m²; Grundstücksanteil ca. 100 m² Wohn- + Nutzfläche für 391.500 € + Garage für 10.300 €; Erbpacht ca. 121 € mtl. vorher nur 50 %
Freistehendes Einfamilienhaus; Nummer 4 (6044) auf ca. 144 m² Grundstückanteil; ca. 103 m² Wohn- + Nutzfläche für 432.400 € + Garage für 10.300 €; Erbpacht ca. 145€ mtl. vorher nur 50%
Innerhalb von Biebesheim am Rhein, in einer Seitenstraße unweit der Ortsmitte entstehen auf einem fast 700 m² großen Erbpacht Grundstück 4 Häuser. Ein freistehendes Haus in Grenzbebauung zum Gehweg und dem Anglerweg und einer Reihenhauskonstellation mit einem Mittel und 2 Endhäusern. Die Häuser werden nicht unterkellert und nach aktuellem Neubaustandart mit guter Energieeffizienz in Massivbauweise errichtet.
Seit nunmehr 30 Jahren sind wir für unsere Kunden am Immobilienmarkt in vielfältiger Weise tätig. Setzen Sie sich mit uns in Verbindung, ob es um die hier ausgesuchte Immobilie, den Verkauf oder die Vermietung Ihrer Immobilie geht, wir sind gerne für Sie da!
Durch das Ausfüllen des Kontaktformulars mit meinem Namen, sowie meiner Rufnummer stimme ich einer Kontaktaufnahme zu.
Die Angaben beruhen im Wesentlichen auf Aussagen des Bauträgers, für deren Richtigkeit die Firma Windorf Immobilien, keine Gewähr übernimmt. Die beschriebenen Eigenschaften bzw. Preis- oder Nebenkostenangaben werden erst durch Schriftform bei Abschluss des Kauf- oder Mietvertrages rechtsverbindlich.
Sie möchten mehr über dieses Objekt erfahren oder einen Besichtigungstermin vereinbaren?
Dann melden Sie sich gerne bei uns – wir beantworten Ihre Fragen und senden Ihnen auf Wunsch das vollständige Exposé zu.
Kontaktmöglichkeiten:
Tel.: 06142 / 72 336
Email: immobilien@windorf.de
Oder nutzen Sie einfach unser Anfrageformular – wir melden uns
schnellstmöglich bei Ihnen.

Telefon: 0 61 42 / 7 23 36
Email: immobilien@windorf.de
Anschrift:
Am Weiher 6
65428 Rüsselsheim