06142 / 723 36
immobilien@windorf.de
Wenn Sie das Besondere lieben, bietet Ihnen dieses außergewöhnlich gepflegte, freistehende Klinkerhaus eine Wohlfühloase in beliebter Lage von Bischofsheim. Es liegt am Ende einer Sackgasse und überzeugt mit seiner modernen Architektur, seiner hochwertigen Ausstattung und einem beindruckenden Raumkonzept.
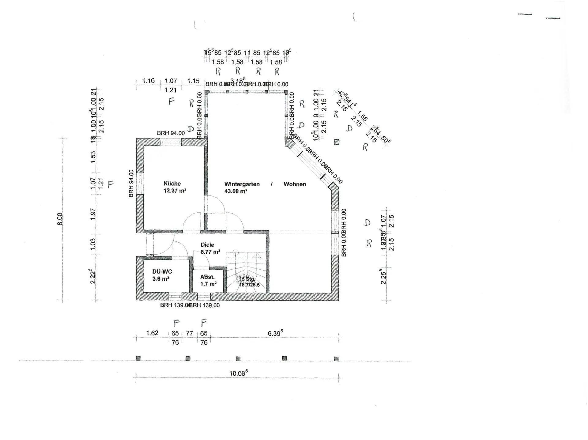
Bereits beim Eintreten werden Sie von einem einladenden Eingangsbereich empfangen, welches in einen großzügigen Wohn- und Essbereich mit Wintergarten überleitet.
Große Fenster und Türen mit hervorragendem Schallschutz schaffen eine ruhige, warme und freundliche Atmosphäre und bieten einen herrlichen Blick in den mit viel Liebe angelegten Garten.
Auf der Terrasse genießen Sie unter der elektrischen Markise wunderbare Stunden.
Eine noch junge, hochwertige Einbauküche lädt zum gemeinsamen Kochen und Bewirten von Familie und Freunden ein.
Gäste können im Erdgeschoss das Bad mit Dusche nutzen und wenn Sie in dem großzügigen Gäste- / Arbeitszimmer im Dachgeschoss übernachten, können Sie dort im Bad die stylische Badewanne oder Dusche nutzen. Kalte Füße? Dank Fußbodenheizung hier kein Problem.
Das Schlafzimmer mit dem angrenzenden Ankleidezimmer runden das gelungene Bild von gesamt rund 121 m² Wohnfläche ab.
Wenn Sie gerne verreisen, gehen die elektrischen Rollläden im Erdgeschoss nach Wunsch hoch und runter und nach Rückkehr finden Sie Platz für die Koffer auf dem gedämmten Dachboden.
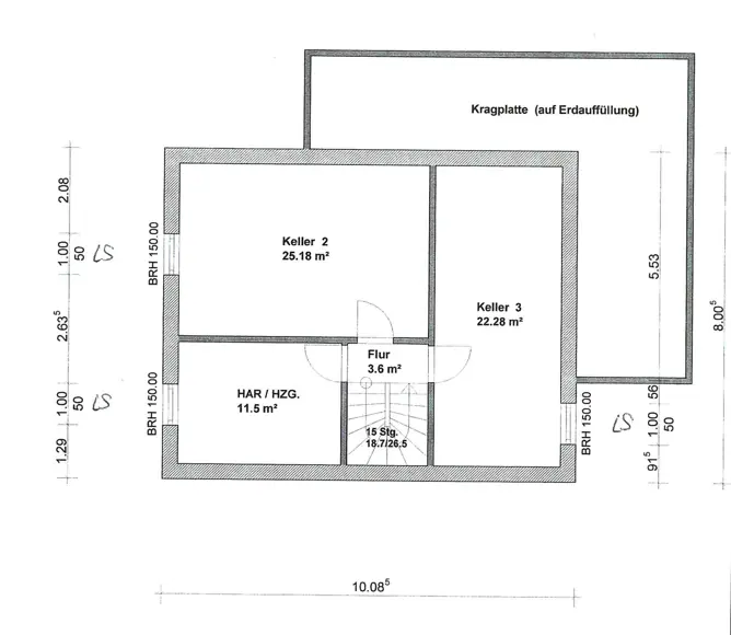
Weitere Abstellflächen findet man in den 3 Räumen des rund 60 m² großen Kellers, wo sich auch die Gasheizung und der neue Warmwasserspeicher befinden. Dieser wird zusätzlich von den auf dem Dach installierten Solarpaneelen gespeist. Damit und durch die exzellente Dämmung des Hauses wird der KfW-60-Standard erreicht.
Abgerundet wird das Angebot durch den überdachten Carport und, falls Sie ein E-Auto haben, können Sie es an der eigenen Wallbox laden.
Das Haus, welches auf 347 m² Grundstück steht, ist ein Ort, an dem sich Wohnträume verwirklichen lassen.
Gerne zeigen wir Ihnen alle Details im Rahmen eines Besichtigungstermins.
Wir freuen uns auf Sie.
Alle Fenster inkl. DFF mit 4-fach Verglasung und Sicherheitsgriffen
Belüftungsanlage im ganzen Haus
Zisterne mit 6.000l Fassungsvermögen, Nutzung für WC Spülung
Neuer Warmwasserspeicher aus 2026
Wintergarten mit abgeschlepptem Dach inkl. Beschattung
Hochwertige Eingangstür mit 17fach Verriegelung
Elektrische Rollläden mit Zeitschaltung im Erdgeschoss
Insektenschutzgitter bis auf eine Tür im Wintergarten
Solarpaneele für Warmwasserbereitung
Zwei Hauswasserwerke
Weichwasseranlage zur Entkalkung
Glasierte (engobierte) Dachziegel
Sehr hochwertige Einbauküche ca. 3 Jahre alt
Zwei Klimaanlagen mit Splittgerät (WZ und SZ)
Fußbodenheizung im Wohnzimmer und Bad im Dachgeschoss
Elektrische Markise
Gartenhütte
Carport für 2 Kfz. inkl. Wallbox
usw.
Bischofsheim am Main ist eine kleine Gemeinde im Kreis Groß-Gerau und liegt im Mainspitzdreieck südlich der Mainmündung zwischen Rhein und Main. Die Umgebung zeichnet sich durch eine ruhige, ländliche Atmosphäre mit direktem Zugang zu Winzerlandschaft und Weinbergen aus. Typisch für die Region sind naturbelassene Flusslandschaften, gut ausgebaute Rad- und Wanderwege sowie eine gute Anbindung an größere Städte wie Mainz, Wiesbaden, Frankfurt und Darmstadt über Autobahnen. Eine gute Anbindung an den ÖPNV innerhalb des Ortes mit Parkmöglichkeiten am Bahnhof ist vorhanden.
Die Gemeinde ist reich an lokalem Einzelhandel, Vereinen und kulturellen Veranstaltungen. Der Ort bietet eine beschauliche Wohnlage und ist besonders attraktiv für Pendler, die den Kleinstadtcharakter mit gutem Mix aus Wohnqualität und regionalem Charakter suchen.
Durch das Ausfüllen des Kontaktformulars mit meinem Namen, sowie meiner Rufnummer stimme ich einer Kontaktaufnahme zu.
Die Angaben stammen vom Eigentümer und wir haben diese nicht im Einzelnen überprüft. Wir haben insbesondere keine eigene Wohnflächenberechnung vorgenommen und übernehmen deshalb keine Haftung für die Angaben der Flächen. Die beschriebenen Eigenschaften bzw. Preis- oder Nebenkostenangaben werden erst durch Schriftform bei Abschluss des Kauf- oder Mietvertrages rechtsverbindlich.
Sie möchten mehr über dieses Objekt erfahren oder einen Besichtigungstermin vereinbaren?
Dann melden Sie sich gerne bei uns – wir beantworten Ihre Fragen und senden Ihnen auf Wunsch das vollständige Exposé zu.
Kontaktmöglichkeiten:
Tel.: 06142 / 72 336
Email: immobilien@windorf.de
Oder nutzen Sie einfach unser Anfrageformular – wir melden uns
schnellstmöglich bei Ihnen.

Telefon: 0 61 42 / 7 23 36
Email: immobilien@windorf.de
Anschrift:
Am Weiher 6
65428 Rüsselsheim